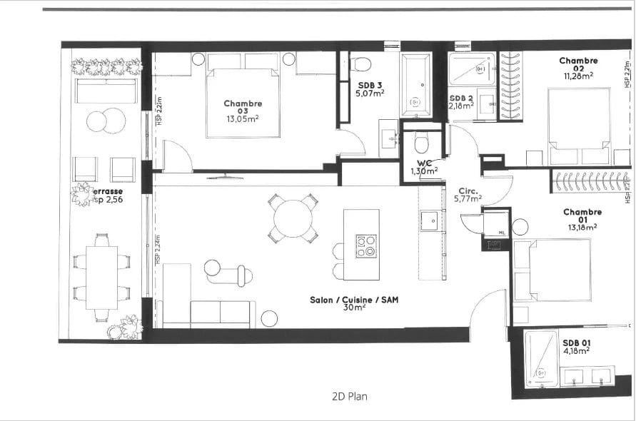
A vendre en plein coeur du quartier du Palm Beach, très beau T4 traversant refait à neuf.
Cet appartement, rénové avec des matériaux haut de gamme, propose une belle pièce de vie avec cuisine ouverte orientée Ouest (donnant sur une large terrasse de 20m²), de 3 chambres en suite avec chacune leur salle de bain (dont 2 chambres avec vue mer) et d’un toilette indépendant.
Accès direct à la plage et parking collectif.
Caractéristiques de la propriété
- Disponibilité : Disponible
- Eau chaude : Collective/Chaudière
- Vue mer : Vue mer
- État : Neuf
- Type : T4
- Pièces : 4 pièces
- Exposition : Est/Ouest
- Chambre(s) : 3
- Etage(s) : 3ème/5
- Surface habitable : 88m²
- Charges : 385€/mois
- Chauffage : Collectif/Au sol
- Surface carrez : 86.66m²

















